Locatie: Lloydstraat, 3024 EA Rotterdam.
Wijk: Schiemond.

3D-filmpje
Gebruikte programma's:
3D-Model: Sketch-Up 2021 Pro
2D-Tekeningen: Autocad 2020
Renderprogramma: Enscape
Tekeningen
Stedenbouwkundige situatie

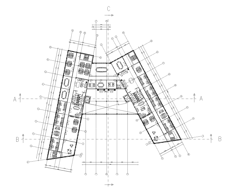
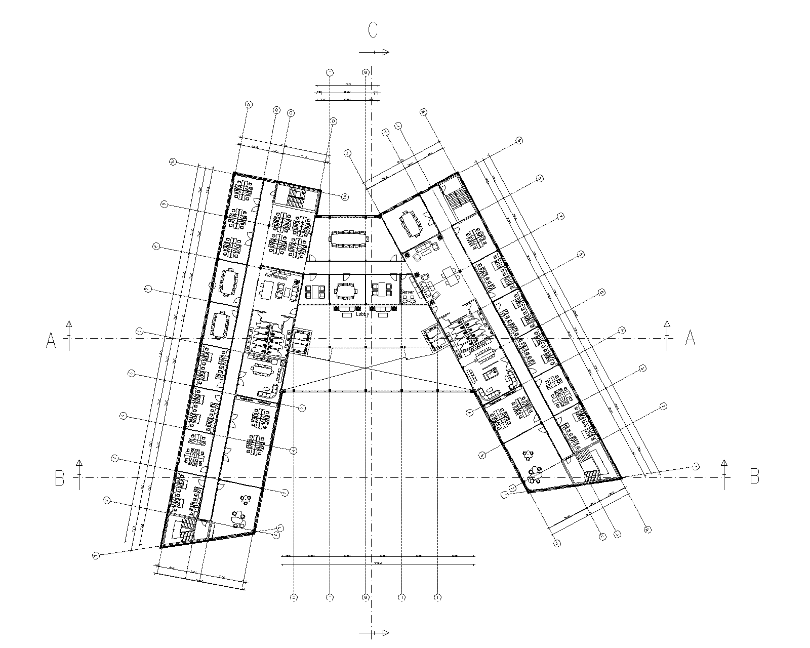
Plattegronden
Doorsnedes
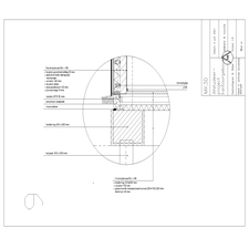
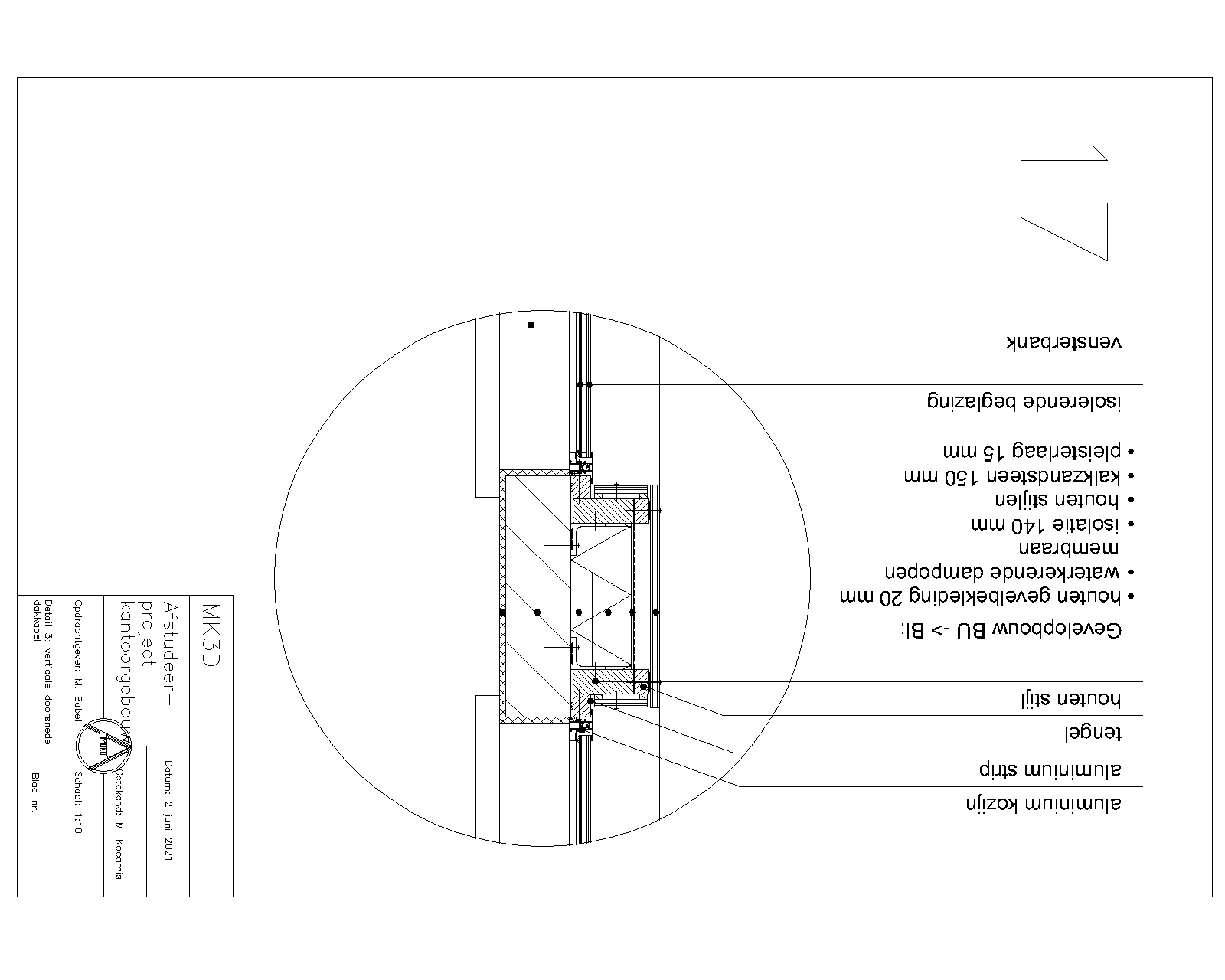
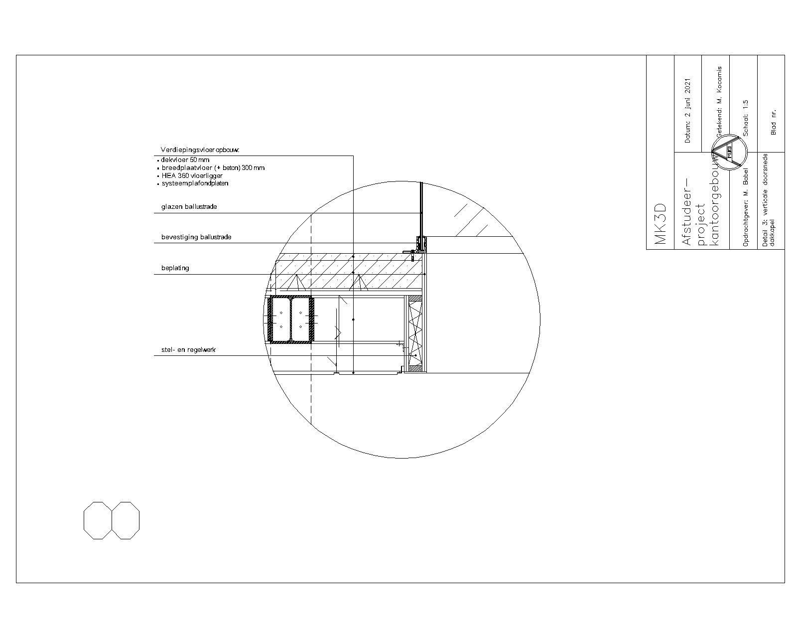
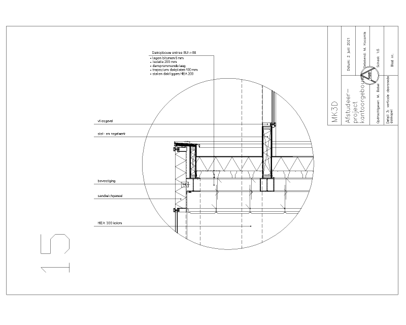
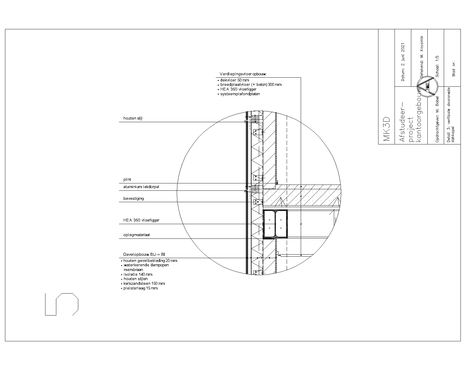
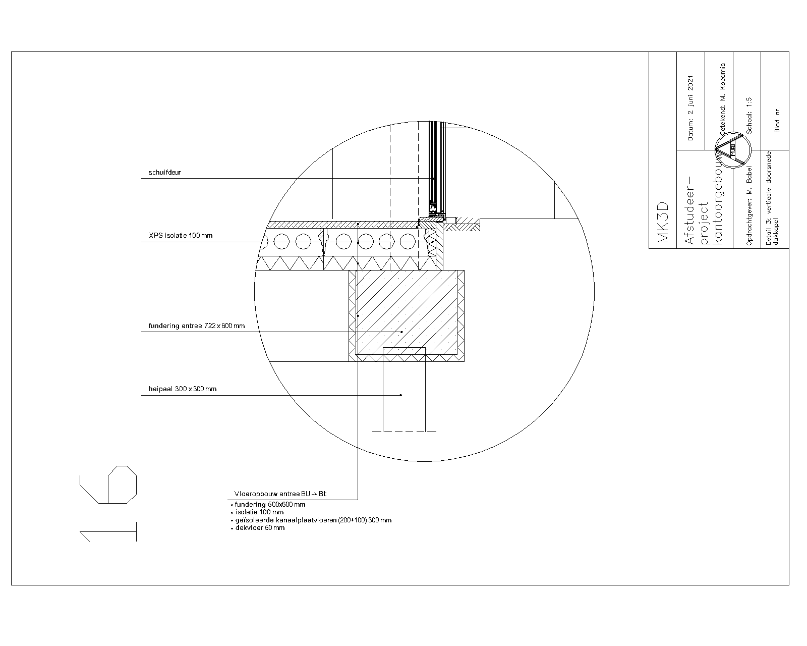
Details
Downloads - hoge kwaliteit PDF
Situatietekening
Plattegronden
Doorsnedes
Details