Woongebouw Lloydstraat

Gepubliceerd op 24 december 2021 om 21:24

Locatie: Rotterdam, Schiemond.

3D-Filmpje


Gebruikte programma's:

3D-Model: Revit 2022

2D-Tekeningen: Revit 2022

Renderprogramma: Enscape

Tekeningen


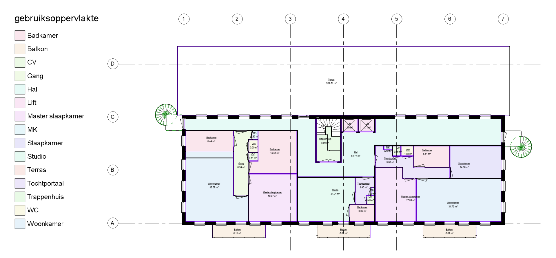
Plattegronden

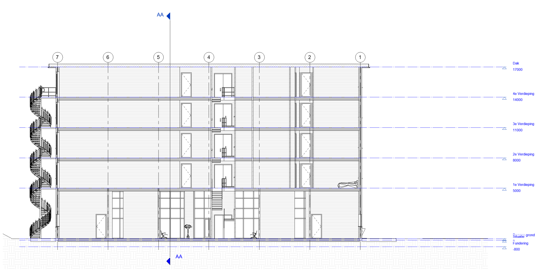
Doorsnedes

Gevelaanzichten